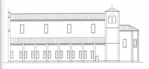
Mirandola – Il Campanile del Duomo
Un giornalista free-lance, di cui non farò il nome, ha ritrovato nell’archivio di una televisione, di cui non farò il nome, una registrazione vocale di un anziano mirandolese, ma ancora in gamba, che si sfogò con alcuni giornalisti la sera del 3 giugno 2012 subito dopo una scossa di magnitudo 5,1. Il giornalista, se lo avete notato non ne ho fatto il nome, me ne ha consegnato la trascrizione che io ho ritenuto opportuno condividere con voi. La registrazione comincia con il rombo della scossa e dopo pochi istanti di silenzio una voce indignata inizia a parlare.
Beh? Cusa ghè da guardar? Cus’eni cal telecameri? Aspettaa ch’a vegna zò par far un scup in diretta? Sa vli na bella storia un po’ muvidentada a vla cont me. Lassaa ch’am presenta: sono il campanile del Duomo della Mirandola.
La mia gestazione è iniziata nel 1440, naturalmente insieme al Duomo, ed è durata parecchi anni. Soldi ce n’erano pochi tanto che i lavori si protrassero per anni, e ho anche il sospetto che i materiali usati non fossero proprio di prima qualità visto che la chiesa ebbe problemi di stabilità fin dall’inizio. Anche l’architetto non dev’essere stato un granchè visto che del suo nome non è rimasta memoria.
La chiesa venne consacrata il 27 luglio del 1491; zinquantun ann i ghà miss, gnanch fuss al dom ad Milan. Io a dire la verità non sembravo neanche un campanile, ero di soli tre piani e poco più alto del tetto della chiesa. Anche architettonicamente avevo i miei bravi difetti, e non da poco. Intanto facevo parte del corpo della chiesa appoggiandomi ai suoi muri e alla mia base c’era la cappella di s. Ubaldo; capite? Praticamente mi sorreggevo sul vuoto. Nonostante tutto, mentre il Duomo veniva ripetutamente modificato o restaurato, causa cedimenti o danni di guerra, io tenevo botta.
Un po’ sostenendomi ai muri della chiesa e un po’ puntando i piedi verso il muro esterno che era largo dieci teste riuscii ad arrivare indenne fino al 1676, ma che fadiga ragazzoi.
Quell’anno si decise di attuare una richiesta d’innalzamento fatta durante una visita pastorale del 1574; nuatar mirandules a s’la tulemm comda.
Il duca Alessandro II Pico fu così generoso da donare 50.000 pietre e altri fondi si ottennero grazie alla generosità dei miei cari mirandolesi. I lavori iniziarono e subito vennero sospesi; ci si era finalmente accorti delle precarie condizioni di stabilità in cui versavo, trassi un sospiro di sollievo.
Innanzitutto venne rifatta con buon materiale la prima colonna presso la cappella di s. Ubaldo, quindi la stessa venne chiusa erigendo un robusto muro di sostegno. A questo punto i lavori ripresero ed io cambiai totalmente aspetto; mi aggiunsero due gallerie per le campane, sovrastate da una guglia con la statua di un angelo di rame dorato. Ora ero fiero del mio aspetto e finalmente potevo dare un’occhiata panoramica alla mia Mirandola, una città bellissima nel suo massimo splendore. Ma anche stavolta qualcosa andò storto!
Solo ventuno anni dopo, il 15 febbraio del 1697 alle ore 8,00, a causa del peso della statua la guglia si aprì in quattro parti; tre rovinarono sul tetto della chiesa e della sacrestia sfondandolo, la quarta precipitò sull’edificio di fronte, i granari dell’ospedale di S. Maria Bianca. Molte pietre inoltre caddero al mio interno fracassando le scale ma risparmiando per fortuna le campane.
Dopo una prima veloce riparazione per la messa in sicurezza, dovetti aspettare la seconda metà del 1749 per venire restaurato e rimesso a nuovo, ma la guglia non si fidarono a ricostruirla e così rimasi con la cima piatta. Sa fuss sta uman a direvv ch’a ghiva i cavì all’umberta.
Nel 1825, approfittando di alcuni lavori di restauro alla chiesa, “staccarono” il mio secondo piano dal muro della stessa per evitare che le vibrazioni, prodotte dal suono delle campane, potesse danneggiarla. Qualche anno dopo, tra il 1838 e ’39, il prevosto Papotti mi fece ricostruire le scale in pietra e aprire una nuova porta che dà sulla via oggi dedicata a don Minzoni. A parte questi piccoli interventi, mi sentivo un po’ trascurato: l’azione degli agenti atmosferici e la poca manutenzione, pur senza darlo troppo a vedere, stavano minando la stabilità della campana maggiore.
Il 2 novembre del 1885, alle 9 e un quarto del mattino, mentre stava suonando per chiamare i fedeli alla messa solenne, la parte nord e l’angolo a nord-ovest della cornice alla sua sommità crollò con gran fracasso sul tetto della chiesa. I danni furono notevoli ma all’interno cadde solo l’intonaco della volta e non ci furono vittime. Qualche giorno dopo arrivò un architetto modenese che consigliò di demolire l’ultima galleria che considerava ad elevato rischio di crollo. Con mio sommo dispiacere il prevosto accettò il consiglio e fece iniziare i lavori per abbassarmi. Per fortuna i mirandolesi si ribellarono ad una simile decisione e sperando in un restauro completo indussero il prevosto a sospendere i lavori ed a limitarsi a mettermi in sicurezza. Passarono però oltre due anni senza che si riuscisse a trovare i fondi necessari così influenti cittadini, guidati dal prevosto stesso, si unirono in un “comitato per il ristauro al campanile del duomo”. Am son verament comoss cla volta e am son cunvint che i mirandules i am volan dimondi ben. Molti cittadini di ogni ceto sociale aderirono e ognuno diede il proprio contributo.
Il 7 luglio del 1888 iniziarono i lavori preparatori e quindi i restauri veri e propri. Mi demolirono la parte superiore che venne riedificata più robusta e sopra di essa mi costruirono una bella cupola ottangolare circondata da una robusta ringhiera e sormontata da un cupolino, anch’esso recintato, che sorregge la croce, e … tant che i gh’era i m’ha datt na ripassada in dapartutt.
L’ultima ricostruzione/restauro fu fatta proprio bene. Da allora oltre la manutenzione ordinaria non ho più avuto bisogno d’interventi importanti. Anche il 20 aprile del 1945 riuscii a venire fuori da un bombardamento aereo e d’artiglieria senza un graffio.
Però la natura è molto più forte dell’uomo e questo terremoto del cavolo mi ha dato una bella scrollatina. Ho perso alcune pietre, sono apparse crepe fastidiose e sono tutto sbilenco, ma ciò che più mi addolora è vedere com’è ridotta la mia chiesa e la mia città … e uatar giurnalista adessa aspettaa sol ch’a casca zò! Dopo 521 anni ho imparato che i miei mirandolesi avranno tanti difetti, ma l’amore per la loro città è tanto forte da fargli superare ogni difficoltà. Da quassù vedo che già hanno cominciato a darsi da fare, aiutati da tanta altra brava gente, e non appena mi avranno messo in sicurezza, li ripagherò rimettendo subito al lavoro le campane e scandendo con i loro rintocchi, anche se registrati, il tempo che ci separa dalla normalità. Quindi cari giornalisti siete pregati di smontare il palcoscenico, spegnere le telecamere e … pass longh e ben dastes!
Vanni Chierici
Fonti: M.Calzolari – Il duomo di Mirandola.
Don F.Ceretti – Memorie storiche – Tomo VII.




