Vanni Chierici – La compagnia della buona morte di s. Rocco.
Se qualcuno nomina “la compagnia della morte” possono venire alla mente due cose: un reparto militare speciale, tipo quello di Alberto da Giussano alla battaglia di Legnano, o un gruppo religioso, una confraternita, tipo quella della Mirandola nell’oratorio di s. Rocco. Nel 1534 la Mirandola è ormai una piccola cittadina dove la presenza della Chiesa è tangibile e numerose le chiese ed i conventi dei vari ordini ecclesiastici; oltre la dozzina solo dentro le mura. Mettere d’accordo tutti però non è mai stato facile e non sempre in un luogo di culto puoi trovare tutto ciò che cerchi. Una delle maggiori piaghe dell’epoca sono le pestilenze e s. Rocco ne è il protettore ufficiale, ma alla Mirandola non vi è un luogo a lui dedicato dove recarsi per invocarne l’aiuto così alcuni fedeli decidono di colmare la lacuna. Con le donazioni e le elemosine raccolte si inizia la costruzione di un oratorio nel Borgo Brusado, così chiamato a causa di un devastante incendio subito anni addietro, nell’odierna via Verdi e di fronte alla biblioteca di alcuni anni fa. La devozione del popolo però è limitata e dopo pochi mesi la fabbrica rischia di chiudere per mancanza di fondi. Interviene allora Galeotto II Pico che con una legge concede le tasse delle “mattinate” e regala un appezzamento di terra confinante col Canaletto. (N.d.a. – Le mattinate erano tasse versate al fisco da quei vedovi che convolavano in seconde nozze.). Oltre a ciò, approfittando di una visita ai Pico di Monsignor Capo d’Istria, questi concede quaranta giorni d’indulgenza a chi donerà elemosine o parteciperà alle funzioni e messe che in detto oratorio si officeranno, permettendo così di completarne l’edificazione. Visto che s. Rocco è protettore anche contro la fame e la guerra, i fedeli fondano la confraternita detta “Compagnia della buona morte” che si prefigge di fare da tramite tra i devoti ed il santo; inoltre si assumono il compito di confessori e consolatori dei condannati a morte. Da quel momento uomini dal saio nero affiancano ed accompagnano nel loro percorso finale i criminali che si avviano verso il patibolo e sarà loro dovere curarne anche la sepoltura in una fossa comune, adibita a tal uopo, nel cimitero di fronte all’ospedale di s. Maria Bianca (in quella che oggi è la piazza della Conciliazione). Nasce, annessa all’oratorio, anche un’opera pia a beneficio dei carcerati che oltre alle questue si avvale di una rendita annua di 200 lire mirandolane. Il lavoro svolto dalla confraternita non deve essere un granchè a giudicare dai risultati; nel 1539 il territorio subisce una grave carestia, cinque anni dopo un’epidemia fa strage di bovini e pecore e nel 1548 una grande siccità danneggia il raccolto e nella Secchia scorre così poca acqua da pregiudicare la macinatura. Nell’inverno del 1551/52 poi l’assedio delle truppe pontificie riduce alla fame la popolazione e nel “59 cede l’argine della Secchia rovinando i raccolti. Spinti dalle disgrazie i fedeli si riversano in massa a pregare ed a presenziare numerosi alle funzioni, tanto numerosi che l’oratorio non è più sufficiente a contenerli tutti. Il conte Lodovico II nel 1562 dona alla Compagnia un edificio adiacente lungo e largo 18 braccia ed un altro due anni dopo di 6 braccia. Grazie alla maggiore affluenza il lavoro della confraternita risulta più efficace, tanto che nel 1574 il vescovo di Reggio monsignor Eustacchio Locatelli, mentre visita le chiese dello stato mirandolano, conferma le costituzioni, i capitoli e le regole della “Compagnia della buona morte”. Per qualche anno i mirandolani se la passano abbastanza bene e naturalmente è merito di s. Rocco e di riflesso della confraternita. I fedeli aumentano e spesso capita che debbano assistere alle funzioni religiose ammassandosi davanti alla porta, lasciata aperta, alla mercede delle bizzarrie del tempo. I religiosi si danno da fare e, trovati nuovi fondi, nel 1636 il principe Galeotto Pico, delegato dal padre Alessandro I, pone la prima pietra per il nuovo oratorio che viene costruito all’angolo tra le odierne via Verdi e via Marsala. Undici anni dopo, al costo di 44.000 lire mirandolane, l’edificio è terminato e le sue dimensioni lo collocano più verso una piccola chiesa che un semplice oratorio. Grazie al buon governo dei duchi Alessandro I e II, s. Rocco e la sua confraternita trascorrono un lungo periodo ricco di soddisfazioni ed esente da banali problematiche economiche. L’opera di convincimento dei confratelli, coadiuvati da saltuarie carestie e pestilenze, e di condannati a morte che offrono spettacoli gratuiti al popolino, non fanno mancare fedeli felici di donare elemosine e sostenere con la forza della fede. Ma come c’insegna la storia a periodi di vacche grasse spesso si succedono periodi di vacche magre. La guerra di successione spagnola scoppiata nel 1700 travolge la Mirandola grazie ad un imberbe duca che con decisioni infelici la trascina alla rovina. Nel terribile bombardamento subito dalla città nel 1704 ad opera dei francesi, il Duomo, s. Francesco e s. Rocco ne escono terribilmente danneggiati. Col termine della guerra e l’annessione del territorio al ducato di Modena e Reggio termina la pacchia. Ora non ci sono più i devoti Pico ad elargire aiuti e i nuovi padroni, gli Estensi, sono più occupati ad arraffare che a dare. Il poco denaro concesso alla riparazione dei danni viene ovviamente dirottato verso le opere più importanti e l’oratorio non è tra queste. L’edificio viene riparato alla meglio ed i segni della distruzione saranno visibili per quasi quarant’anni. Si deve attendere il 1741 perché il priore conte Giuseppe Panigadi si decida ad aprire i cordoni della propria borsa e faccia restaurare a proprie spese l’oratorio consentendone la completa riapertura. Nel 1747, in occasione del centenario, per tre giorni vengono celebrate funzioni religiose in pompa magna con dovizia di paramenti sacri e addobbi. Il 27 settembre viene consacrato al suffragio dei confratelli defunti e il giorno dopo a s. Rocco. Il terzo giorno messa cantata e conclusione in grande stile con un solenne Te Deum. L’oratorio nella sua esistenza dà anche ospitalità a diverse società accademiche, quali gli “Incolti”, i “Filarmonici” e i “Rinascenti”, i cui affiliati si riuniscono nel luogo sacro per decantare, recitare e discutere di sonetti e poesie e scritti vari. L’esistenza dell’oratorio trascorre talmente tranquilla e serena che nel 1795 si decide di riedificarne la facciata su disegni di Giacinto Paltrinieri. Ma il lieto vivere è ormai alla fine; tre anni dopo il cittadino modenese Pier Luigi Leonelli, commissario della repubblica francese, si reca alla Mirandola ed ordina la chiusura delle chiese, dei conventi e la soppressione degli ordini religiosi, tra cui l’oratorio di s. Rocco e la confraternita della morte. Meno di un anno e gli austriaci conquistano la città annullando le decisioni francesi. L’oratorio è stato parzialmente più fortunato di altri edifici religiosi: molti sono già stati venduti a privati e alcuni frettolosamente abbattuti. S. Rocco riesce a riaprire le porte e la confraternita a riformarsi alla meglio, ma è per poco. La chiesa di s. Francesco è ridotta veramente male e per salvarla si decide di sacrificare s. Rocco. Nel 1811 viene venduto al sig. Francesco Fracci al prezzo di 80 zecchini che lo demolisce due anni dopo formando un ampio cortile in cui vengono edificate alcune tettoie adibite a stalle. Per fortuna non vi erano ormai più condannati a morte da accompagnare al capestro o al ceppo. A questo punto il mio articolo storico è finito, ma voglio aggiungere un estratto da un sito-web che spiega: in cosa consisteva l’opera di conforto fornita ai condannati a morte dalla Confraternita della buona morte. Innanzi tutto è opportuno ricostruire brevemente quali fossero i momenti salienti che caratterizzavano l’iter del condannato, prima di giungere al giorno dell’esecuzione capitale. Nella ricostruzione delle procedure adottate in questi frangenti vengono in soccorso gli Statuti della Confraternita della Misericordia di Vercelli, molto simili a quelli dell’oratorio di s. Rocco. Una volta emessa la sentenza di condanna a morte, il condannato era portato nel confortatorio. Avuta notizia della condanna, la Confraternita era tenuta, di norma, ad esporre il gonfalone della morte. L’ostensione dello stendardo poteva durare dai tre ai sei giorni e serviva ad avvisare tutta la cittadinanza del fatto che, a breve, si sarebbe svolta un’esecuzione capitale. Il confortatorio era un luogo completamente isolato a cui avevano acceso solamente i due Confratelli prescelti per la preparazione spirituale del condannato. Gli Statuti regolavano in modo piuttosto rigido anche le norme relative alla somministrazione di cibi e bevande ai “pazienti” nel confortatorio. Costoro, infatti, dovendo ricercare il perdono divino, dovevano mortificare il fisico e fortificare lo spirito. Cibo, bevande, utili a rifocillare i condannati e gli indumenti, nel caso essi fossero necessari a rendere presentabile il condannato, erano forniti, a proprie spese, dalla Confraternita. Una volta ultimate le formalità della vestizione, il condannato, insieme con i due confortatori, s’incamminava verso il patibolo. Arrivati alle porte del carcere, il condannato doveva pronunciare parole di pentimento e recitare qualche preghiera di fronte al Crocifisso prima di salire sul carretto che lo avrebbe condotto nel luogo dell’esecuzione Compito dei Confratelli era quello di mantenere la mente del condannato il più possibile impegnata nel recitare orazioni e concentrata nello sforzo d’espiazione. A tale scopo i confortatori si servivano di tavolette sulle quali erano riprodotte le effigi di Cristo, della Vergine e d’altri Santi. Lo scopo di mantenere lo sguardo del condannato fisso sulla tavoletta era duplice: da un lato si desiderava mantenere la sua attenzione viva sul rito d’espiazione, dall’altro si tentava di ovviare all’eventualità che lo sguardo diabolico del morituro potesse contaminare coloro che assistevano all’esecuzione. Gli occhi, infatti, essendo lo specchio dell’anima avevano il potere, secondo la tradizione, di contagiare chiunque avesse incrociato lo sguardo con il reo un attimo prima che fosse ucciso dal boia. Il Confratello che portava con se la tavoletta, accompagnava il condannato fino sopra al patibolo, recitando qualche orazione, sussurrando alcune parole di conforto e facendo attenzione a tenere l’immagine sempre fissa davanti agli occhi del condannato. Quando tutto era pronto per l’esecuzione, il confortatore abbandonava il patibolo per raggiungere gli altri Confratelli raccolti in preghiera, lasciando, così, che la giustizia facesse il proprio corso. Mentre i due confortatori portavano a termine la propria missione, gli altri Confratelli preparavano dettagliatamente la tempistica e la gestualità della funzione. Il Maestro delle Cerimonie controllava che nessun confratello venisse meno al basso profilo richiesto dalle circostanze e non ostentasse lussi o stravaganze nell’abbigliamento. Negli statuti si raccomandava di indossare solamente il “sacco ” e la cappa nera, recanti il simbolo della Confraternita. Una volta avuta notizia dell’avvicinarsi del “paziente”, il Maestro delle Cerimonie ordinava di celebrare una Messa, alla fine della quale venivano scelti due Confratelli per cantare le litanie, tre piuttosto robusti per portare il Cristo in croce sino alle porte del carcere, infine, altri due, particolarmente degni o per nascita o per prestigio derivante dalla carica, a portare le torce. La processione, a questo punto, si dirigeva verso le Carceri, dove si attendeva l’arrivo del morituro. Innanzi alle carceri si univano alla processione descritta in precedenza, il Cappellano, il Governatore in mezzo a due sagrestani, i quali avevano il compito di portare tutto il necessario nel caso l’esecuzione si fosse prolungata più del previsto. Il giorno successivo i fratelli tornavano sul luogo del supplizio ed il Governatore – o il più degno tra loro – assistito dal Maestro delle Cerimonie, staccava il cadavere, riponeva il capestro in una sacca e, processionalmente, s’incamminava verso il cimitero, situato presso, nel caso della Mirandola, la chiesa dell’ospedale di s. Maria Bianca. Vanni Chierici Fonti: Memorie storiche della città e dell’antico ducato della Mirandola. Tomi III – IV – IX “Laborcare” sito web.




Giulio Da Como
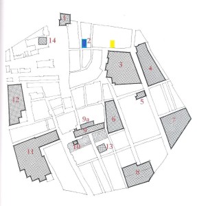
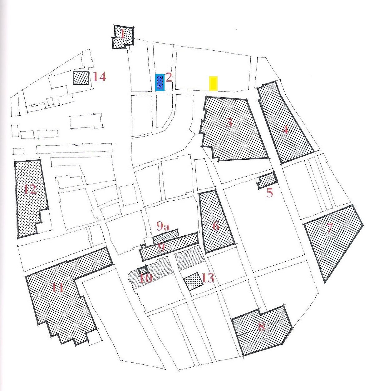
Salve vorrei sapere dove si trovano i resti della chiesa di San Rocco a Mirandola.
2 Ottobre 2022Fabrizio Artioli
Buongiorno Giulio, la Chiesa di San Rocco, come da piantina, evidenziata in blu, era posizionata in quella che ora è via Marsala. Ci dovrebbe essere anche una targa, se non è stata tolta.
3 Ottobre 2022